Thông số kĩ thuật
- Chất liệu: Thép không gỉ
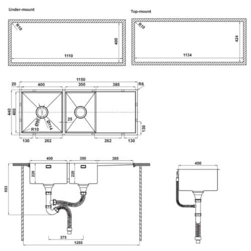
- Chậu 2 hố 1 bàn chuẩn bị: hai hố lệch
- Độ sâu của chậu: 220 mm
- Độ dày: 1 mm
- Kích thước chậu: 1150D x 440R mm
- Kích thước mỗi bồn: 400D x 400R mm / 300D x 400R mm
- Kích thước cắt đá:
- + Lắp nổi: 1134D x 424R mm
- + Lắp âm: 1110D x 400R mm
- Kích thước khoang tủ: 900 mm
- Trọn bộ: Lưới để đồ Rollmat, Thớt gỗ, Rây kim loại











Đánh giá
Chưa có đánh giá nào.